favorite
balance
autorenew
f
Lenka 4.02
Lenka 4.02

Lenka 4.02

Domů arrow_forward Katalog arrow_forward arrow_forward Lenka 4.02
Typový projekt dvoupodlažního rodinného dvojdomu (poloviny dvojdomu) o velikosti bytové jednotky 4+kk s garáží.
Zastavěná plocha:
219.8 m2
Užitná plocha:
339.04 m2
Výška hřebene:
8.17 m
Sklon střechy:
40°
Dispozice:
2x 4+kk/4+1

i
Cena projektu je včetně DPH
Cena projektu pro povolení i realizaci

Typový projekt:
129 591 Kč
Osazení na parcelu:
26 136 Kč
Úpravy projektu:
od 0 Kč

i
Cena realizace je bez DPH
Orientační cena realizace na klíč

12 770 000 Kč
11 190 000 Kč
Půdorysy
Podrobné informace
Galerie
Technologie a materiály
Změny projektu
Obsah projektu
Doplňkové služby
Premium

Půdorysy

Varianta základní
Varianta individuální

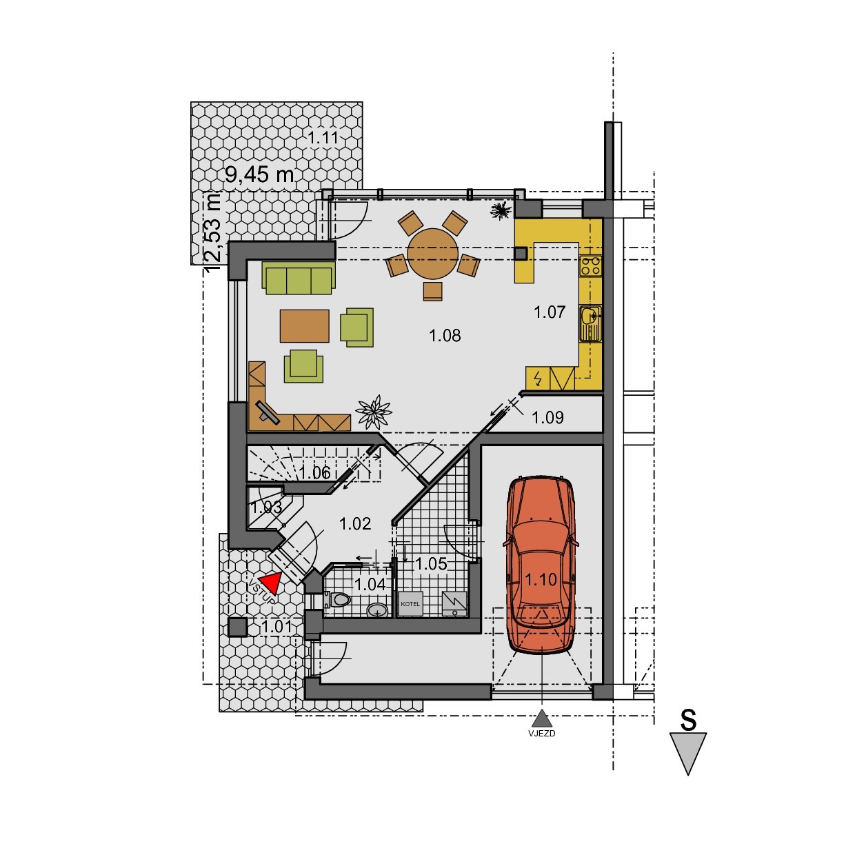
1.NP – půdorys přízemí

1.01 ZÁVĚTŘÍ 3,62 m2
1.02 CHODBA 6,12 m2
1.03 SCHODIŠTĚ 4,29 m2
1.04 WC 2,10 m2
1.05 KOMORA 5,96 m2
1.06 ŠATNA 2,40 m2
1.07 KUCHYŇ 9,24 m2
1.08 OBÝVACÍ POKOJ + JÍDELNA 35,92 m2
1.09 SPÍŽ 2,23 m2
1.10 GARÁŽ 23,03 m2
1.11 TERASA 14,18 m2

2.NP – půdorys patra

2.01 CHODBA 2,83 m2
2.02 KOUPELNA 11,76 m2
2.03 POKOJ 17,73 m2
2.04 POKOJ 18,02 m2
2.05 POKOJ 18,02 m2
2.06 BALKON 6,25 m2

Klientská úprava dispozice domu

Díky programu RD s BONUSEM je možné upravit ZDARMA všechny části projektu rodinného domu, které nemění tvar a velikost rodinného domu (dějí se tedy uvnitř obvodových konstrukcí).

Více informací si můžete přečíst zde. V případě zájmu nás neváhejte kontaktovat pro nezávaznou konzultaci a zpracování cenové nabídky.

Vstupní konzultace je nezávazná a zcela zdarma.

Podrobné informace

Zastavěná plocha:
219.8 m2
Užitná plocha:
339.04 m2
Obestavěný prostor:
1386 m3
Výška hřebene:
8.17 m
Sklon střechy:
40°
Dispozice:
2x 4+kk/4+1
Šířka:
9,45 m
Délka:
12,40 m
Typ střechy:
Sedlová
Podlažnost:
Dvoupodlažní
Garáž:
Ano
Krytá terasa:
Ne
Bezbariérový:
Ne
Vzhled:
Klasický
Dům vhodný pro:
Město
Doporučená orientace vstupu:
Sever
Typový projekt dvoupodlažního rodinného dvojdomu (poloviny dvojdomu) o velikosti bytové jednotky 4+kk s garáží.

Vstup do domu a hlavní komunikační prostory jsou netradičně orientovány úhlopříčně, čímž vznikají zajímavé přechody mezi jednotlivými místnostmi. Kuchyň, jídelna a obývací pokoj jsou spojeny do veliké centrální obytné místnosti. ta je ještě rozšířena o prosklenou alkovnu vhodnou pro jídelní stůl, která obývací místnost příjemně prosluňuje. Dispozice počítá i s potřebnými pomocnými prostory – technická místnost, komora, spíž.

Sedlová střecha s velkými vikýři dává domu tradiční vzhled, který se hodí do jakékoliv zástavby. Výrazným prvkem fasády je vystupující prosklená část, která je v patře využita pro malou terasu.

Prémiový obsah

Co získáte v rámci přístupu k obsahu Premium se dočtete zde.

Pro zobrazení prémiového obsahu se prosím přihlašte, nebo registrujte.

Technologie a materiály

Obálka budovy

Svislé konstrukce obvodové – variantně

Tepelně izolační zdivo Ytong YQ P2-300 tl. 450 mm XELLA
Pálená cihla Cihla Porotherm EKO+ tl. 440 mm POROTHERM
Dřevostavba Stěny z dřevěného nosného systému + zateplení Isover EPS 70F tl. 120 mm VEXTA DOMY

Střecha – tepelné izolace

Šikmá střecha UNI v tl. 40 mm + 120 mm + 180 mm ISOVER
Ostění a nadpraží Styrodur 2800 C 20 mm ISOVER

Podlaha

Přízemí + podlahovka Isover EPS Grey 80 mm + EPS 30 mm ISOVER
Přízemí + radiátory Isover EPS Z tl. 120mm ISOVER
Podlaha podkroví Isover EPS Rigifloor tl. 40mm (neplatí pro bungalovy) ISOVER

Výplně otvorů

Vchodové dveře Plastové KOMFORT EVO případně částečně prosklené VEKRA
Okna Plastová KOMFORT EVO s trojsklem VEKRA
Střešní okna GGU zasklená trojsklem VELUX
Garážová vrata Plechová, sklopná, ručně ovládaná VEKRA

TZB

Základní varianta

Tepelné čerpadlo Strateo 4,5 MR/E + zásobník TUV 190l DE DIETRICH
Rekuperační jednotka KOMBIAIR SCHIEDEL
Rekuperační výměník TUV AKIRETHERM AKIRE
Podlahové topení FV PLAST
Radiátory KERMI

Varianta 2

Plynový kotel Luna Duo-tec+ 1.24 + zásobník TUV 125l BAXI
Rekuperační jednotka KOMBIAIR SCHIEDEL
Rekuperační výměník TUV AKIRETHERM AKIRE
Podlahové topení KERMI
Radiátory KERMI

Varianta 3

FVS elektrárna (Panely Sunergy, Střídač Goodwe)
Ohřívač TUV Jablotron Ambienta W
Regulace WATTrouter nebo Baterie Pylontech Force H2
Variantně vč. Rekuperace Jablotron Futura
Elektrická topná folie Heatflow HEAT ENERGY

Chlazení

Split jednotky Luna Clima BAXI
Stropní chlazení FV KLIMA FV PLAST

Kontrukce a materiály

Základy

Klasické založení Základové pasy z prostého betonu o rozměrech stanovených statickým výpočtem,
podkladní beton z prostého betonu tl. 150 mm vyztužený KARI sítěmi
BEST
Základový systém Základový systém s tepelnou izolací a dodávkou na klíč

Svislé konstrukce vnitřní – variantně

Ytong – tvárnice P4-500 v tl. 375, 300, 250 a 200mm XELLA
Ytong – nosné zdivo z VPC kvádrů tl. 240mm 8DF P20 XELLA
Cihla Porotherm tl. 240 nebo 300 mm POROTHERM

Komínové těleso

Komínový systém UNI ADVANCED SCHIEDEL
Variantně: Komín s integrovaným krbem KINGFIRE SCHIEDEL

Vodorovné konstrukce

Strop Ytong – Klasik v tl. 250mm + výztuž Kari sítě XELLA
Strop Keramické stropní panely CZP Stropy CZP STROPY
Překlady Systémové překlady nebo ŽB včetně přípravy pro vnější podomítkové žaluzie

Střešní konstrukce

Dřevěný krov, dřevěné střešní latě a kontralatě, ochranný nátěr, popř. střešní vazníky z hoblovaného dřeva KASPER

Střešní krytina

Kompletní střešní systém BRAMAC (betonová skládaná krytina) BRAMAC
Kompletní střešní systém LINDAB (plechová krytina) LINDAB

Schodiště

Ocelová konstrukce s dřevěnými stupni včetně zábradlí, případně celodřevěné JAP FUTURE

Hydroizolace

Proti zemní vlhkost Stěrková izolace, mírný radonový index ECRYPT
Parozábrana Parotěsná fólie v podhledu ISOVER
Pojistná izolace střechy Difuzní fólie na krokvích, Tloušťky izolací dle normových požadavků ISOVER

Výplně otvorů

Vnitřní dveře Plné nebo 2/3 prosklené do dřevěné obložkové zárubně VEKRA
Posuvné dveře do pouzder Standard nebo Komfort JAP FUTURE
Zárubně Skrytá zárubeň Active JAP FUTURE

Obklady a dlažby

Keramická dlažba v koupelně a na WC KOUPELNY PTÁČEK
Keramický obklad v koupelně do výše 2,0 m, na WC 1,5 m KOUPELNY PTÁČEK
Ostatní podlahové plochy Laminátové parketové desky nebo PVC, betonová mazanina

Omítky

Fasádní omítka Silikonová vnější prstovitá omítka Weber.pas silikon WEBER
Sokl Omítka vzor cihly Weber.pas silicon brick / marmolit Weber.pas marmolit WEBER
Vnitřní omítky Gletovaná sádrová omítka Weber.mur657 WEBER
Lehčená jádrová omítka: Weber.dur 130 s perlinkou R178 WEBER

Nátěrové hmoty

Interiérové a fasádní barvy, barvy na kov, dřevo a SDK

Klempířské konstrukce

Pozinkovaný ocelový plech včetně nátěru LINDAB

Zařizovací předměty

Baterie a srchové sety KLUDI
Zařizovací předměty GEBERIT

Elektroinstalace

Měděné vodiče, vypínače, zásuvky, hromosvod

Zdravotní technika

Plastové rozvody, potrubí z trubek PVC FV PLAST

Stínící technika

Okenní rolety, žaluzie, markýzy VEKRA

Vnější povrchy

Venkovní zámková betonová dlažba, Okapní chodník a terasy BEST

Oplocení a zahradní betonové prvky

BEST

Ostatní instalace

Liniový odvodňovací systém s roštem ACO
Venkovní čistící rohož ACO
Dvorní vpusť ACO
Akumulační nádrže ACO
Schody na půdu: Lusso PP 80x60cm JAP FUTURE
Světlovody TWR 010 VELUX

S ohledem na to, že i takto široká nabídka nemusí uspokojit veškeré představy a individuální nároky všech zákazníků nebo požadavky vyplývající z konkrétní parcely a regulačních podmínek pro výstavbu v dané lokalitě, nabízíme svým klientům možnosti individuálních klientských změn, tj. možnost zapracování požadovaných úprav a požadavků do typové projektové dokumentace.

Zrcadlové provedení vždy ZDARMA

 

Přehled možných změn v projektu

V rámci naší nabídky rozlišujeme dvě cenové hladiny projektů:

A) TOP označené projekty: 69 696 Kč

B) Ostatní projekty: 129 591 Kč

V rámci cenové hladiny A) jsou změny kalkulovány individuálně a začínají na ceně od 17 424 Kč a maximální cena je 59 895 Kč.

V rámci cenové hladiny B) jsou veškeré úpravy, které nemění tvar a velikost rodinného domu (dějí se tedy uvnitř obvodových konstrukcí) zpracovány pro typový projekt v základní ceně ZDARMA.

V případě požadavků na větší změny v typovém projektu nás neváhejte kontaktovat pro nezávaznou konzultaci a zpracování cenové nabídky.

Uváděné ceny jsou včetně DPH.

Typový projekt rodinného domu je zpracován v podrobnosti dle vyhlášky o dokumentaci staveb č. 131/2024 v aktuálním znění a slouží pro povolení stavby i pro provádění stavby rodinného domu a kolaudaci.

Nová vyhláška o dokumentaci staveb vyšla v návaznosti na platnost nového stavebního zákona č. 283/2021 Sb. v roce 2024, více zde v článku.

Obsah typového projektu rodinného domu:

Pro povolení stavby – 1x paré v PDF/A-3 s elektronickým autorizačním razítkem:

  • A Průvodní list
  • B Souhrnná technická zpráva
  • D Dokumentace objektů
    • D.1 Stavební a technologická část:
    • D1.1 Architektonicko – stavební řešení (Technická zpráva: základní architektonické řešení, stavebně technické řešení, provozní řešení, požadavky na technické vlastnosti stavby a podmínky přístupnosti. Výkresová část: charakteristické půdorysy, charakteristické řezy, základní pohledy v měřítku 1:100)
    • D.2 Základní stavebně konstrukční řešení (Technická zpráva. Základní statický výpočet. Výkresová část: výkres základů a výkresy nosné konstrukce stavby v měřítku 1:100)
    • D.3 Požárně bezpečnostní řešení (technická zpráva, výkres požárně nebezpečného prostoru domu)

Pro provádění stavby – 3x paré v tištěné formě s autorizačním razítkem:

  • A průvodní list
  • B souhrnná technická zpráva
  • D.1 architektonicko-stavební řešení (požadavky na stavební konstrukce, řešení požadavků na stavební konstrukce, výkresová část: výkopy, základy, půdorysy, řezy, pohledy, tabulka výrobků, detaily)
  • D.2 technika prostředí staveb (požadavky na systém;
    • zdravotně technické instalace + výkresová část
    • vytápění, chlazení a vzduchotechnika + výkresová část
    • silnoproud + výkresová část
  • D.3 stavebně konstrukční řešení (požadavky na konstrukční řešení, popis konstrukčního řešení, podrobný statický výpočet, výkresová část: výkres tvaru, řezy a detaily, schéma výztuže, strop, věnce, krov)
  • D.4 požárně bezpečnostní řešení (technická zpráva, výkres požárně nebezpečného prostoru domu)
  • Výkaz výměr

Průkaz energetické náročnosti budovy (PENB)

Průkaz energetické náročnosti budovy hodnotí budovu podle spotřeb energií (vytápění, chlazení, větrání, ohřev teplé vody, spotřeba elektřiny) a je součástí potřebné dokumentace pro stavební povolení / ohlášení stavby. Vydaný je podle zákona č. 406/2000 Sb., o hospodaření energií, a vyhlášky č. 264/2020 Sb., o energetické náročnosti budov.
Obsah: zatřídění domu v celkové klasifikační třídě (A – G), ukazatele energetické náročnosti, celková dodaná energie, primární energie z neobnovitelných zdrojů, roční průběh dodané energie, bilance tepelných toků, parametry obálky budovy, technické systémy budovy.

8 712 Kč

 

Osazení domu na pozemek

Řeší polohopisné a výškopisné umístění domu na pozemku investora pro povolení stavby / záměru dle vyhlášky o dokumentaci staveb č. 131/2024 v aktuálním znění. Řeší napojení domu na inženýrské sítě jako je kanalizace, voda, plyn a elektřina (pouze domovní přípojky, vnější přípojky je potřeba objednat samostatně). Dále řeší napojení rodinného domu na přilehlou komunikaci.
Obsah dokumentace: technická zpráva, situační výkres širších vztahů v měř. 1:10000, katastrální situační výkres v měř. 1:500, koordinační situační výkres v měř. 1:200.

26 136 Kč

 

Rozpočet stavby

Dopracování výkazu výměr o rozpočtářské ceny za materiál a práci jednotlivých položek. Položkový rozpočet stanovuje orientační cenu rodinného domu v průměrných cenách trhu. Ceny jsou stanovovány pro každý rok na základě předchozích realizací, při zohlednění meziročního inflačního nárůstu v oboru stavebnictví.

7 260 Kč

 

Situace pro územní informaci

Situace pro územní informaci je zákres rodinného domu do katastrální mapy.

2 299 Kč

Projekt ČOV

Pokud není možné rodinný dům připojit na kanalizační řad, je potřeba řešit likvidaci splaškových vod na vlastním pozemku. Jednou z možností je umístění biologické čistírny odpadních vod, která splaškové vody přečistí.

18 150 Kč

Orientační propočet RD

Orientační kalkulace nákladů na realizaci rodinného domu členěná po základních etapách stavby. Slouží pro orientační stanovení ceny výstavby a jednotlivých etap.

1 815 Kč

Inženýrská činnost

Vyřízení stavebního povolení nebo ohlášení stavby rodinného domu. Investora zastupujeme na základě plné moci při jednání se všemi úřady a institucemi od kterých je pro stavební úřad potřeba získat kladné stanovisko. Tuto službu zajišťujeme pouze rodinným dům, pro které zpracováváme dokumentaci.

 

29 040 Kč – 36 300 *

 

* Cena bez poplatků a víceparé spojené s vyřízením vyjádření. Přesná cena dle nabídky s ohledem na lokalitu výstavby.

Uváděné ceny jsou včetně DPH.

Jak na to?

1.
Nezávazná konzultace
Osobně, po emailu, Skypu apod. Vyjasnění požadavků klienta a všech potřebných informací. více
(Cca 1 hodina)
2.
Zpracování CN
Položková cenová nabídka na kompletní rozsah služeb, finální rozsah služeb je na volbě zákazníka. více
(Do 2 dnů od schůzky)
3.
Objednávka
Definování rozsahu díla, ceny, splátkového kalendáře, harmonogramu prací, potřebných podkladů. více
(Do 2 dnů od potvrzení CN)
4.
Zpracování projektu
Zpracování projektu podle nového stavebního zákona, pro povolení i provádění stavby. více
(6 – 21 týdnů)
5.
Vyřízení povolení
Zastupování zákazníka při zajišťování potřebných stanovisek a podání žádosti o stavební povolení. více
(Cca 3 – 12 měsíců)
Array
(
    [491] => WP_Post Object
        (
            [ID] => 491
            [post_author] => 1
            [post_date] => 2021-03-08 10:20:55
            [post_date_gmt] => 2021-03-08 09:20:55
            [post_content] => 
            [post_title] => Nezávazná konzultace
            [post_excerpt] => 
            [post_status] => publish
            [comment_status] => closed
            [ping_status] => closed
            [post_password] => 
            [post_name] => nezavazna-konzultace
            [to_ping] => 
            [pinged] => 
            [post_modified] => 2021-04-16 08:54:29
            [post_modified_gmt] => 2021-04-16 06:54:29
            [post_content_filtered] => 
            [post_parent] => 0
            [guid] => http://nasdum.posunemevasvys.cz/?post_type=timeline&p=491
            [menu_order] => 1
            [post_type] => timeline
            [post_mime_type] => 
            [comment_count] => 0
            [filter] => raw
        )

    [492] => WP_Post Object
        (
            [ID] => 492
            [post_author] => 1
            [post_date] => 2021-03-08 10:21:28
            [post_date_gmt] => 2021-03-08 09:21:28
            [post_content] => 
            [post_title] => Zpracování CN
            [post_excerpt] => 
            [post_status] => publish
            [comment_status] => closed
            [ping_status] => closed
            [post_password] => 
            [post_name] => zpracovani-cn
            [to_ping] => 
            [pinged] => 
            [post_modified] => 2021-04-16 08:57:43
            [post_modified_gmt] => 2021-04-16 06:57:43
            [post_content_filtered] => 
            [post_parent] => 0
            [guid] => http://nasdum.posunemevasvys.cz/?post_type=timeline&p=492
            [menu_order] => 2
            [post_type] => timeline
            [post_mime_type] => 
            [comment_count] => 0
            [filter] => raw
        )

    [493] => WP_Post Object
        (
            [ID] => 493
            [post_author] => 1
            [post_date] => 2021-03-08 10:21:46
            [post_date_gmt] => 2021-03-08 09:21:46
            [post_content] => 
            [post_title] => Objednávka
            [post_excerpt] => 
            [post_status] => publish
            [comment_status] => closed
            [ping_status] => closed
            [post_password] => 
            [post_name] => objednavka
            [to_ping] => 
            [pinged] => 
            [post_modified] => 2021-04-16 08:58:03
            [post_modified_gmt] => 2021-04-16 06:58:03
            [post_content_filtered] => 
            [post_parent] => 0
            [guid] => http://nasdum.posunemevasvys.cz/?post_type=timeline&p=493
            [menu_order] => 3
            [post_type] => timeline
            [post_mime_type] => 
            [comment_count] => 0
            [filter] => raw
        )

    [494] => WP_Post Object
        (
            [ID] => 494
            [post_author] => 1
            [post_date] => 2021-03-08 10:22:08
            [post_date_gmt] => 2021-03-08 09:22:08
            [post_content] => 
            [post_title] => Zpracování projektu
            [post_excerpt] => 
            [post_status] => publish
            [comment_status] => closed
            [ping_status] => closed
            [post_password] => 
            [post_name] => zpracovani-projektu
            [to_ping] => 
            [pinged] => 
            [post_modified] => 2025-01-23 15:07:30
            [post_modified_gmt] => 2025-01-23 14:07:30
            [post_content_filtered] => 
            [post_parent] => 0
            [guid] => http://nasdum.posunemevasvys.cz/?post_type=timeline&p=494
            [menu_order] => 4
            [post_type] => timeline
            [post_mime_type] => 
            [comment_count] => 0
            [filter] => raw
        )

    [495] => WP_Post Object
        (
            [ID] => 495
            [post_author] => 1
            [post_date] => 2021-03-08 10:22:31
            [post_date_gmt] => 2021-03-08 09:22:31
            [post_content] => 
            [post_title] => Vyřízení povolení
            [post_excerpt] => 
            [post_status] => publish
            [comment_status] => closed
            [ping_status] => closed
            [post_password] => 
            [post_name] => vyrizeni-stavebniho-povoleni
            [to_ping] => 
            [pinged] => 
            [post_modified] => 2021-04-16 08:56:58
            [post_modified_gmt] => 2021-04-16 06:56:58
            [post_content_filtered] => 
            [post_parent] => 0
            [guid] => http://nasdum.posunemevasvys.cz/?post_type=timeline&p=495
            [menu_order] => 5
            [post_type] => timeline
            [post_mime_type] => 
            [comment_count] => 0
            [filter] => raw
        )

)
clear

Objednávka

Zvolte prosím typ projektu:

    Objednávka malého projektu









    Závazně objednávám zaslání "Malého projektu" typového rodinného domu za 1 815 Kč (vč. DPH) na dobírku prostřednictvím České pošty. Cena dobírky je 103 Kč (vč. DPH). Po odeslání objednávky Vám bude na vyplněnou e-mailovou adresu zaslána kopie objednávkového formuláře s instrukcemi pro uhrazení 40% zálohy. Po připsání zálohy na účet společnosti Architektonická kancelář Křivka s.r.o. Vám bude do 5 pracovních dnů odeslán na dobírku prostřednictvím České Pošty Malý projekt Vámi zvoleného rodinného domu. Při převzetí dobírky uhradíte zbývajících 60% ceny Malého projektu a poštovné.

    Odesláním objednávky, souhlasíte s podmínkami ochrany odobních údajů

    Pole s označením * je nutné vyplnit.

      Objednávka typového projektu










      Předběžně objednávám projekt typového rodinného domu dle platného ceníku společnosti Architektonická kancelář Křivka s.r.o.. Na základě obdržení této předběžné objednávky typového rodinného domu budu kontaktován za účelem podepsání (zaslání) závazné objednávky projektu mnou vybraného rodinného domu.

      Odesláním objednávky, souhlasíte s podmínkami ochrany odobních údajů

      Pole s označením * je nutné vyplnit.

      clear

        Nezávazná poptávka

        Odesláním poptávky, souhlasíte s podmínkami ochrany odobních údajů

        Pole s označením * je nutné vyplnit.